Vente maison
Vedène (84270) - réf. 211V1972M
Maison Vedène
Centre-ville, achat maison
9 chambres
283 m²
595 000 €*
- 624 750 $
- 487 900 £
- Autres devises
Exclusivité.
Superbe mas de ville avec un énorme potentiel et beaucoup de charme !
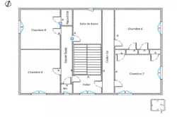
Implanté sur un joli jardin arboré, ce mas de plus de 280 m² comprend 11 pièces sur 2 étages. La cage d'escalier centrale distribue un grand séjour de 48 m², une cuisine, 9 chambres, 2 salles d'eau, une salle de bains. Ce bien chargé d'histoire a été très bien entretenu et les propriétaires l'ont fait évoluer avec son temps : Toiture rénovée en 2018 avec isolation, huisseries récentes en double vitrage, pompe à chaleur air/eau de 2019, tableau électrique récent, portail automatique…
Nombreuses possibilités !
Prestations
- Surface séjour : 48 m²
- Surface terrain : 775 m²
- Année construction : 1800
- Exposition : Sud
- Vue : Jardin
- Eau chaude : Electrique
- État intérieur : Bon
- État extérieur : Bon
- 9 chambres
- 1 terrasse
- 1 salle de bain
- 2 salles de douche
- 4 toilettes
- 5 parkings
Prestations
- Pompe à chaleur de 2019
- Toiture de 2018
- Tableau électrique récent
- Potentiel
- Cage d'escalier centrale
- Stationnement
- Dépendance
- Gouttières
- Chambre de plain-pied
- Double vitrage
Informations légales
- 595 000 €
Honoraires d'agence à la charge du vendeur, aucune procédure en cours, les informations sur les risques auxquels ce bien est exposé sont disponibles sur georisques.gouv.fr, notre barème de prix est consultable ici





























