For sale house
Vedène (84270) - ref. 211V2015M
House Vedène
Downtown, buying house
9 bedrooms
283 m²
575 000 €*
- 672 750 $
- 500 250 £
- Other currencies
Exclusive.
Fantastic town farmhouse full of charm and incredible potential!
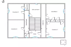
Set within a beautiful landscaped garden, this farmhouse offers over 280 m² of living space spread across 11 rooms on two floors. The central staircase leads to a spacious 48 m² living room, a kitchen, 9 bedrooms, 2 shower rooms, and a bathroom. Steeped in history, the property has been very well maintained, and the owners have updated it to modern standards: Roof renovated in 2018 with insulation, recent double-glazed windows, 2019 air-to-water heat pump, updated electrical panel, automatic gate…
Numerous possibilities!
Features
- Surface of the living : 48 m²
- Surface of the land : 775 m²
- Year of construction : 1800
- Exposition : South
- View : Garden
- Hot water : Electric
- Inner condition : Good
- External condition : Good
- 9 bedrooms
- 1 terrace
- 1 bathroom
- 2 showers
- 4 WC
- 5 parkings
Features
- Pompe à chaleur de 2019
- Toiture de 2018
- Tableau électrique récent
- Potentiel
- Cage d'escalier centrale
- Stationnement
- Outbuilding
- gutters
- Chambre de plain-pied
- Double Glazing
Legal information
- 575 000 €
Agency fees paid by the owner, no current procedure, information on the risks to which this property is exposed is available on georisques.gouv.fr, click here to consulted our price list






























